歡迎光臨 开云体育在线官网 企業官網!服務熱線:150-9324-8915
值得信賴的防水套管生產廠家專為需要**性能的場所設計
防水套管生產廠家服務谘詢TEL:150-9324-8915
熱門關鍵詞:
想要更深入了解各地 防水套管係列產品 相關資訊,盡在我們的 地域探索 等你發現!

开yun体育app官网入口下载翼環規範

文章來源:kaiyun中国官方登录入口 作者:Aofan 時間:2025-02-27 08:28:00 閱讀:280次

开yun体育app官网入口下载是常用的防水材料,在建築、工程和其他領域中起到關(guan) 鍵的防水作用。其中,翼環規範是开yun体育app官网入口下载安裝過程中需要遵循的重要標準和要求。小編今天將詳細介紹开yun体育app官网入口下载翼環規範的定義(yi) 、重要性以及相關(guan) 的操作指南和建議。

开yun体育app官网入口下载(C型)尺寸、重量表

开yun体育app官网入口下载(C型)尺寸、重量表

一、开yun体育app官网入口下载翼環規範的定義(yi) 和重要性

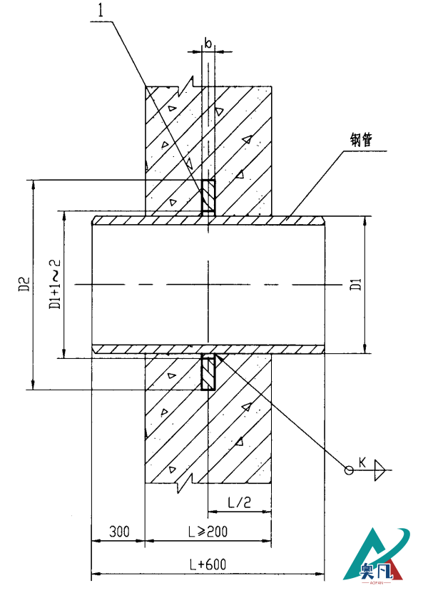
开yun体育app官网入口下载翼環規範是指在开yun体育app官网入口下载安裝過程中,關(guan) 於(yu) 翼環的尺寸、形狀、間隙和連接方式等的具體(ti) 標準和規定。

开yun体育app官网入口下载翼環規範的遵循對於(yu) 保障防水套管的密封性、安全性和工程質量至關(guan) 重要。規範的翼環設計和安裝可以有效防止水分滲透和侵蝕,確保設備的正常運行和使用壽命。

二、开yun体育app官网入口下载翼環規範的操作指南和建議

根據實際工程需求和管道直徑,選擇合適的翼環尺寸。通常情況下,翼環的寬度建議在30mm至80mm之間,厚度建議在10mm至20mm之間。

翼環可以有不同的形狀,常見的有方形、圓形等。選擇合適的翼環形狀需要考慮套管和周圍材料的接觸麵,以確保翼環緊密密合。

防水套管翼環與(yu) 周圍材料之間的間隙需要合理控製。太小的間隙可能導致安裝困難和密封效果不理想,而太大的間隙則可能影響防水性能。建議翼環與(yu) 周圍材料的間隙控製在5cm至10cm之間。

剛性防水翼環安裝圖二

剛性防水翼環安裝圖二

進行翼環連接時,應采用**且耐久的方式,如翼環與(yu) 套管的焊接、膠粘劑固定等。確保翼環與(yu) 套管之間的連接牢固**,不會(hui) 因為(wei) 振動或溫度變化導致鬆脫和破壞。

安裝开yun体育app官网入口下载時,嚴(yan) 格按照規範進行操作,確保每個(ge) 翼環的尺寸、形狀和連接方式一致。采用專(zhuan) 業(ye) 的工具和技術,確保翼環的安裝質量和效果。

开yun体育app官网入口下载翼環規範的遵循對於(yu) 保障开yun体育app官网入口下载的防水性能和安全性具有重要意義(yi) 。安裝過程中,應遵循規範的翼環尺寸、形狀、間隙和連接方式等要求。通過合理的翼環設計和安裝操作,可以增強防水套管的密封性能,有效防止水分滲透和設備損壞。

相關(guan) 文章推薦人防密閉套管填充材料作用

相關(guan) 文章推薦开yun体育app官网入口下载填充材料分析

相關(guan) 文章推薦人防密閉套管預埋要求圖集規範有哪些?

在線客服
聯係方式

谘詢TEL

150-9324-8915

上班時間

周一到周五

公司TEL

150-9324-8915

官方WX客服
公司微信