歡迎光臨 开云体育在线官网 企業官網!服務熱線:150-9324-8915
值得信賴的防水套管生產廠家專為需要**性能的場所設計
防水套管生產廠家服務谘詢TEL:150-9324-8915
熱門關鍵詞:
想要更深入了解各地 防水套管係列產品 相關資訊,盡在我們的 地域探索 等你發現!

开yun体育app官网入口下载a型b型做法

文章來源:kaiyun中国官方登录入口 作者:Aofan 時間:2025-02-26 17:20:24 閱讀:174次

在防水套管圖集02s404中,根據防水套管的適用範圍以及構造等,將防水套管分為(wei) 了开yun体育app官网入口下载和柔性防水套管,其中开yun体育app官网入口下载因其結構簡單,造價(jia) 便宜,強度高,耐候性強等優(you) 點被廣泛應用於(yu) 建築、工程和其他領域。它能夠有效保護電纜、管道等設備免受水分和潮濕環境的侵蝕。开yun体育app官网入口下载中,A型和B型是常見的兩(liang) 種不同的安裝方法和做法。欲知开yun体育app官网入口下载a型b型做法,敬請關(guan) 注kaiyun中国官方登录入口。

一、开yun体育app官网入口下载A型的做法

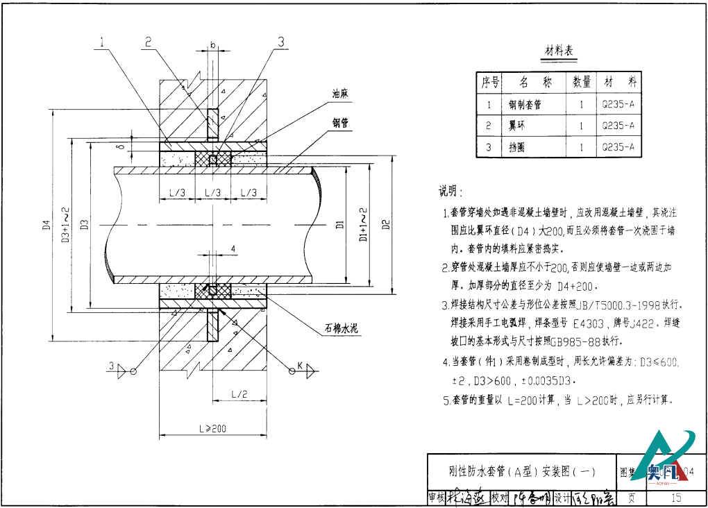
开yun体育app官网入口下载A型安裝圖(一)

开yun体育app官网入口下载A型安裝圖(一)

注:如需开yun体育app官网入口下载A型安裝圖(二),請於(yu) 管理員聯係。

1. 材料準備:

準備好开yun体育app官网入口下载、電焊機,鋼釘,紮絲(si) 等工具。

2. 清理現場:

清理模版上的雜物和灰塵,或是清理鋼筋現場的垃圾,確保安裝部位平整幹淨。

3. 安裝防水套管:

用電焊機將防水套管固定在鋼筋網上,或是用鋼釘,紮絲(si) 把防水套管固定在模板上。

4. 混凝土澆築:

防水套管安裝完畢後,需要澆築混凝土,澆築時避免防水套管位移,避免混凝土漿流入防水套管內(nei) 部或是螺絲(si) 孔內(nei) ,如有此種情況,及時處理。

防水套管澆築混凝土且已完成混凝土的養(yang) 護工作,這時就可以進行電線管道,給排水管道的穿管了,穿管時注意所穿管道和防水套管一定要平行,且放置於(yu) 防水套管中間位置。

5. 密封處理:

在防水套管與(yu) 所穿管道,周圍牆麵或地麵接觸處,用瀝青油麻,石棉水泥,密封膠進行密封處理,確保不會(hui) 有水分滲透。

开yun体育app官网入口下载A型的特點是安裝簡單、固定性好,適用於(yu) 一些較為(wei) 簡單的防水場合。常見的應用場景包括室內(nei) 電線、水管與(yu) 牆麵直接接觸處等。

二、开yun体育app官网入口下载B型的做法

开yun体育app官网入口下载(B型)安裝圖

开yun体育app官网入口下载(B型)安裝圖

开yun体育app官网入口下载B型的安裝做法和A型的做法基本相同,**不同之處是A型开yun体育app官网入口下载和所穿管道之間有一個(ge) 擋圈,這樣的設計使的A型开yun体育app官网入口下载的防水性能略高於(yu) b型。

kaiyun中国官方登录入口特別提醒:這隻是一種常見的开yun体育app官网入口下载的做法,具體(ti) 的操作方法可能會(hui) 因材料、管道類型等因素而略有差異。實際施工中,請根據材料的說明書(shu) 和專(zhuan) 業(ye) 人士的指導進行操作。

相關(guan) 文章推薦开yun体育app官网入口下载怎麽(me) 安裝

相關(guan) 文章推薦防水鋼套管型號規格表

相關(guan) 文章推薦防腐耐用電氣套管,熱鍍鋅工藝,電路安全守護者,長久耐用!

在線客服
聯係方式

谘詢TEL

150-9324-8915

上班時間

周一到周五

公司TEL

150-9324-8915

官方WX客服
公司微信