歡迎光臨 开云体育在线官网 企業官網!服務熱線:150-9324-8915
值得信賴的防水套管生產廠家專為需要**性能的場所設計
防水套管生產廠家服務谘詢TEL:150-9324-8915
熱門關鍵詞:
想要更深入了解各地 防水套管係列產品 相關資訊,盡在我們的 地域探索 等你發現!

02S404型开yun体育app官网入口下载圖集:防水套管產品的依據與應用

文章來源:kaiyun中国官方登录入口 作者:Aofan 時間:2024-03-03 07:15:11 閱讀:327次

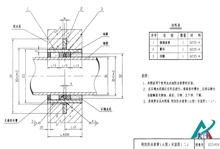
02S404型开yun体育app官网入口下载圖集作為(wei) 防水套管生產(chan) 廠家的主要依據,是根據中國建築標準設計研究院出版的防水套管圖集02S404而設計生產(chan) 的防水套管產(chan) 品。這種防水套管具有廣泛的適用性,在國家建設不斷發展的近年來,越來越多地應用於(yu) 建築、化工、鋼鐵、自來水、汙水處理等管道建設項目中。02S404开yun体育app官网入口下载尺寸表和重量表提供了詳細的信息,以幫助選型和施工。

02S404防水套管

02S404防水套管

02S404型开yun体育app官网入口下载圖集是防水套管生產(chan) 過程中的重要參考文件。它根據中國建築標準設計研究院提供的技術規範,規劃和整合了多種規格的防水套管產(chan) 品。這些規格包括公稱直徑(DN)、穿管外徑(D1)、防水套管外徑(D3)和翼環外徑(D4)等關(guan) 鍵尺寸。

开yun体育app官网入口下载圖集02s404

开yun体育app官网入口下载圖集02s404

通過02S404型圖集,我們(men) 可以得到關(guan) 於(yu) 不同規格的开yun体育app官网入口下载的詳細信息。其中DN表示防水套管的公稱直徑,D1表示穿管的外徑,D3表示防水套管的外徑,而D4表示翼環的外徑。這些尺寸信息對於(yu) 準確選擇合適的防水套管至關(guan) 重要,從(cong) 而確保施工質量和防水效果。

02S404圖集還提供了有關(guan) 防水套管的重量信息。這對於(yu) 計算和控製材料消耗具有重要意義(yi) 。根據防水套管的長度(L值)和翼環的數量,可以計算並確定相應的材料重量。

开yun体育app官网入口下载(A型)尺寸、重量表.png

开yun体育app官网入口下载(A型)尺寸、重量表

02S404型开yun体育app官网入口下载圖集不僅(jin) 提供了關(guan) 鍵尺寸和重量信息,還提供了有關(guan) 材料選擇、安裝方法、質量檢測等方麵的指導。它的實用性和**性使其成為(wei) 防水套管行業(ye) 中重要的參考資料。

开yun体育app官网入口下载

开yun体育app官网入口下载

02S404型开yun体育app官网入口下载圖集是防水套管生產(chan) 廠家的主要依據,並在建築、化工、鋼鐵、自來水、汙水處理等領域得到廣泛應用。通過詳細的尺寸表和重量表,02S404型圖集對選擇合適的防水套管起到了關(guan) 鍵作用。它不僅(jin) 提供了相關(guan) 規格的信息,還指導了材料選擇和施工方法,確保了防水套管的質量和防水效果。

相關(guan) 文章推薦您知道柔性防水套管壓盤常采用什麽(me) 材質嗎

相關(guan) 文章推薦人防密閉肋是什麽(me) 意思

相關(guan) 文章推薦柔性防水套管的優(you) 點和適用範圍

在線客服
聯係方式

谘詢TEL

150-9324-8915

上班時間

周一到周五

公司TEL

150-9324-8915

官方WX客服
公司微信